August 18, 2019 – House Tour: First-floor interior

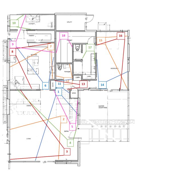
Below is a floor-plan of the first floor. Each numbered box represents one of the following 18 photographs showing the interior of the first floor. The lines extending from each box extend to the locations on the wall that are at the edges of each image. The ground floor consists of four main rooms: the great room, which is a combination living room and dining room, the kitchen, the laundry room, and the master bedroom. In addition, there is a pantry off the kitchen, a powder room, and a bathroom and closet/dressing room attached to the master bedroom.

First floor plan – Each numbered box represents one of the following 18 photographs. Use this to orient yourself as you move through the picture.
1st Floor – 1: The front door opened to the interior. This is a steel door that swings on a pivot rather than hinges. The ceilings are ten feet high.
1st Floor – 2: These are the windows at the front of the great room. The panel on the left is a door that slides into the pocket on the left along with a screen door. Unfortunately, with the plastic sheeting protecting the outside window, the view is obscured.
1st Floor – 3: West wall of the great room. The window on the right will be in the dining room and will get filtered light through the gabion wall. The small circular opening in the opposite wall will be the flue for a high-efficiency wood stove.
1st Floor – 4: North wall of the great room. The opening on the left goes into the kitchen. The one on the right leads to a hallway with the guest bath and the master bedroom.
1st Floor – 5: View up the stairway from the second floor. The wall directly ahead is 16 feet high from the landing to ceiling. We are looking for some sufficiently dramatic (but affordable!) treatment for it. The metal on the right is a ladder.
1st Floor – 6: Looking into the kitchen from the great room doorway. Eventually, there will be an island, with two sinks, the dishwasher, and the primary prep space, in the center, roughly where the boxes are now, and many cabinets on the walls. To the back, on the left, are the back door and the entrance to the laundry room. The two bright lights in the ceiling are SolaTubes.
1st Floor – 7: The doorway on the left looks back into the great room. The induction cooktop (no natural gas at Modjeska) and oven will be in the opposite corner, on the other side of the island, with cabinets on the walls to either side.
1st Floor – 8: The door to the great room is now on the right. To the left of that will be a second oven and the microwave mounted on the wall. To the left of that will be a built in desk and more cabinets.
1st Floor – 9: Swinging the camera further to the left from the picture above, the north edge of the kitchen is now just on the right side of the frame. Straight ahead is the space that will be a large, walk-in pantry. On the very left you can just see into the laundry room.
1st Floor – 10: This will be the combination laundry room – plant shed. There will be a large sink located about where the picture was taken. On the left wall will be a washer and dryer. On the right wall will be a stand with multiple plant lights for starting seedlings.
1st Floor – 11: Leaving the kitchen area, this is picture looking down the back hall from the entrance to the great room. This is taken from inside the space that will be the coat closet. On the left is part of the door frame and one of the walls for the powder room.
1st Floor – 12: This is looking into what will be the powder room; there is not much to see now. The black pipe sticking out of the floor in the opposite corner will be the toilet connection. Just to the right are the connections for the vanity sink.
1st Floor – 13: Looking back up the hallway, the opening to the great room is is on the left. The coat closet is straight ahead. (The powder room is now off to the right.)
1st Floor – 14: The master bedroom as seen from the hallway door. We plan to put the head of the bed under the high windows across the room. The bottoms of the windows are roughly eight and a half feet above the floor.
1st Floor – 15: This picture was taken from the other end of the room beside one end of the bed and shows the west wall of the master bedroom. Because of the plastic protecting the outside of the windows, you cannot really see through them.
1st Floor – 16: This was taken from the other side of the head of the bed. On the left is a sliding door that open to a small patio area near the front door. In the middle is the entrance to the hall to the great room. On the right is the opening to the bathroom.
1st Floor – 17: This shows part of the master bathroom. The skylight will be above the vanity running along the wall on the left. The space on the right will be a walk-in shower.
1st Floor – 18: This shows part of the large, L-shaped walk-in closet. This space is large enough to serve multiple purposes, one of which will be as the hub of the audio-visual and home control features of the house as well, as, of course, storage.
This entry was posted in house. Bookmark the permalink. Post a comment or leave a trackback: Trackback URL.

Post a Comment

Your email is never published nor shared. Required fields are marked *

*
*